Play Button
株式会社上岡祐介建築設計事務所 断熱範囲図作成サービス

断熱範囲図作成|最適な省エネ計算をご提案

日本全国対応

¥25,000 / 枚~

省エネ適合性判定や、設計住宅性能評価の申請に
必要な断熱範囲図。計算から作成までワンストップで対応!

株式会社上岡祐介建築設計事務所 断熱範囲図作成サービス

断熱範囲図作成|最適な省エネ計算をご提案

日本全国対応

¥25,000 / 枚~

省エネ適合性判定や設計住宅性能評価の申請に
必要な断熱範囲図
計算から作成までワンストップで対応!

断熱範囲図作成業務に対する想い

株式会社上岡祐介建築設計事務所 » 断熱範囲図作成サービス

/ 省エネ計算の匠・一級建築士

断熱範囲図をスピーディーかつ正確に作成します。

「設計業務が増えても、設計料は変わらず...」「断熱範囲図の作成に時間を割けない...」
確認申請や事前協議に追われ、自社で作図しても省エネ計算との整合が取れているか不安を感じている方も多いかと思います。そんな皆さまのために、上岡祐介建築設計事務所では断熱範囲図の作成を代行いたします。環境関連業務も含め、低価格でスピーディーかつ柔軟な対応で設計事務所をサポートいたします。

こんな困りごとないですか?

- TROUBLE

上岡祐介建築設計事務所にお任せ下さい!

忙しいお客様に代わって作成いたします。
今後、省エネ計算書との整合も求められます。
弊社であれば、省エネ計算から断熱範囲図まで
一貫して作成できます。

省エネ計算代行

実施設計業務や天空率・日影計算も承ります。
ぜひ併せてご依頼下さい。

実施設計業務の詳細

申請図作成業務の詳細

上岡祐介建築設計事務所にお任せ下さい!
弊社は設計業務も省エネ計算も行なっております。
セットでご依頼ください。納期もお急ぎの場合は、1週間以内で整合の取れた省エネ計算書と断熱範囲図をお納めいたします。

省エネ計算代行

実施設計業務や天空率・日影計算も承ります。
ぜひ併せてご依頼下さい。

実施設計業務の詳細

申請図作成業務の詳細

上岡祐介建築設計事務所にお任せ下さい!
現場の納まりや計算書を見て図面に反映することは難しいと思います。
弊社は省エネ計算を行なっているので、計算書から意図を読み、図面に反映することが出来ます。納まり上、断熱材が吹付できない箇所があれば、お伝えいたします。

省エネ計算代行

実施設計業務や天空率・日影計算も承ります。
ぜひ併せてご依頼下さい。

実施設計業務の詳細

申請図作成業務の詳細

上岡祐介建築設計事務所にお任せ下さい!
図面の修正は最短翌日。作図は最短3日でお納めいたします。

実施設計業務や天空率・日影計算も承ります。
ぜひ併せてご依頼下さい。

実施設計業務の詳細

申請図作成業務の詳細

株式会社上岡祐介建築設計事務所 » 断熱範囲図作成サービス

お悩み解決できます。

- SOLUTION

今ご利用の省エネ計算会社は、現場の納まりや工事費を考慮した提案をしてくれていますか?
審査機関とのやり取りはスムーズに進んでいますか?

これらは、省エネ計算会社に依頼していた際に感じた疑問です。私たちも同じ設計事務所として、現場での苦労をよく理解しています。

省エネ法の届出や住宅性能評価、BELS、ZEHなど、設計業務には検討すべき項目が多く、迅速な対応が求められます。上岡祐介建築設計事務所では、省エネ計算から断熱範囲図の作成までをワンストップでサポートし、審査機関からの指摘にも柔軟に対応いたします。
資格を持ったスタッフが多数在籍しておりますので、どうぞ安心してお問い合わせ下さい!

資格保持者多数在籍

一級建築士:4名、二級建築士:4名 在籍
設備設計一級建築士:1名 在籍
住宅省エネルギー技術講習会合格者及び修了者:R019-13-C-0394
省エネ適合性判定終了証明書:第16-0910号
CASBEE建築:08029-24
CASBEE戸建:戸-07722-25
CASBEE不動産:ふ-000820-24
CASBEEウェルネスオフィス評価員:ウ-00131-26

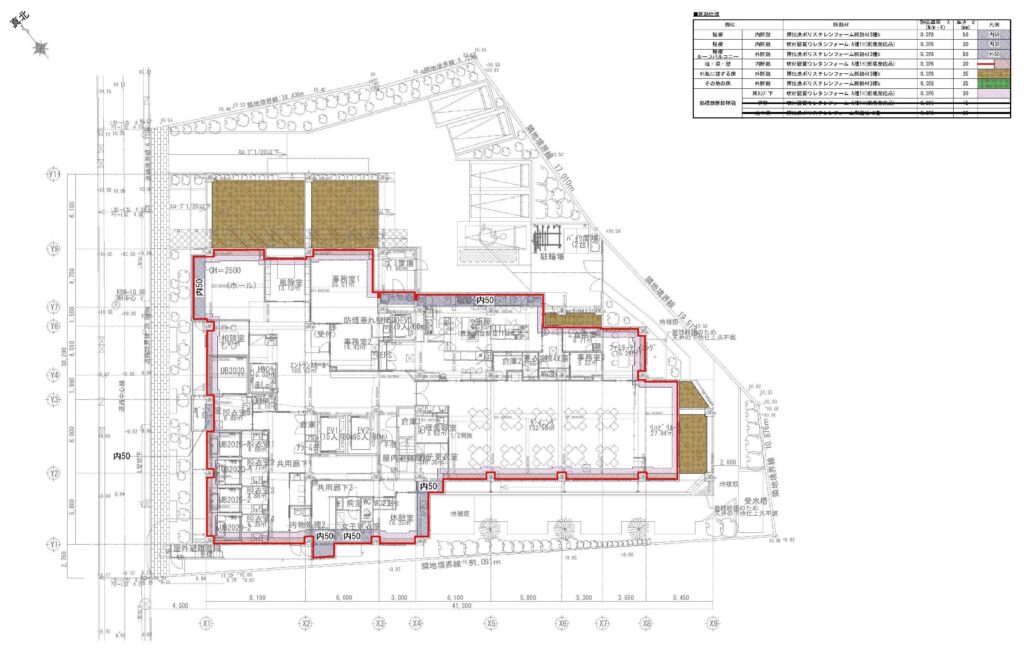
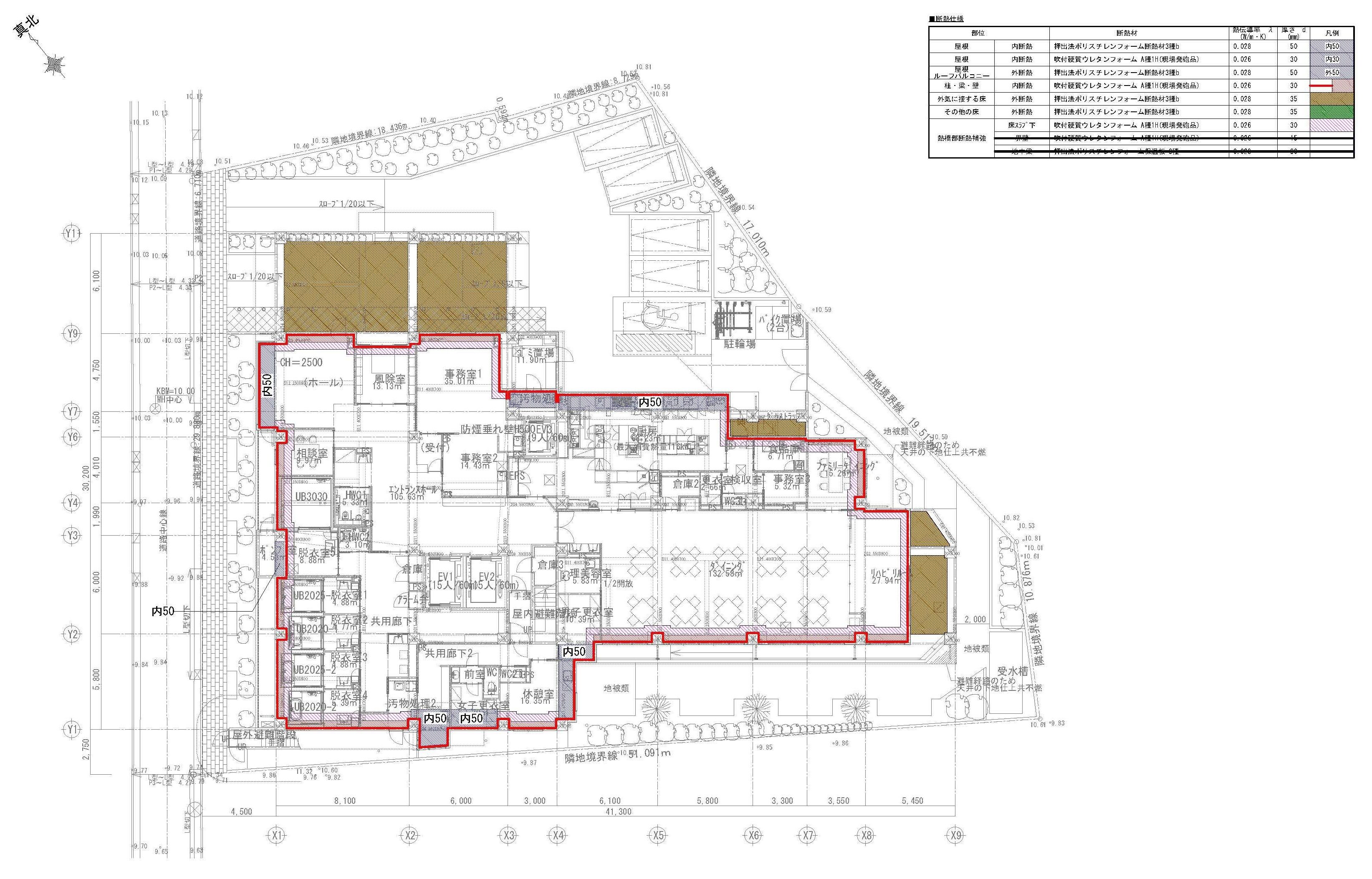
断熱範囲図作成の業務内容

- SERVICE

各種図面作成

などの申請に必要な断熱範囲図を作図いたします。

各種図面作成

などの申請に必要な断熱範囲図を
作図いたします。

意匠設計事務所の気持ち痛感します!

株式会社上岡祐介建築設計事務所 » 断熱範囲図作成サービス

/ 省エネ計算の匠・一級建築士

審査機関との面倒なやり取りも、弊社が代行します。

同じ意匠設計事務所だからこそ、皆さまの気持ちがよくわかります!
審査機関との面倒なやり取りも、設計事務所に代わって対応いたします。
コストを抑えたい、基本設計完了から着工までの期間が短く、省エネ計算や関連図面の作成に時間が割けない…といったお悩みがあれば、ぜひご相談下さい。

選ばれる理由

- REASON

役所の審査を迅速かつスムーズに通過できるよう、上岡祐介建築設計事務所独自の省エネ計算用の丁寧な拾い図や根拠資料を作成いたします。また日本ERIの認定サポーターが現場のコストや納期を考慮し、20年以上の設計監理経験と省エネ計算の豊富な実績(2573棟以上)を活かし、お困りごとを解決します。
さらに、省エネ等級を満たすための変更提案では、コストと性能を考慮したご提案をいたします。納期については、通常5~10営業日ですが、お急ぎの場合は翌日納品の実績もございます。

省エネに関する業務は多岐にわたり、BELS、ZEH、住宅性能評価、低炭素などの事前検討が必要な物件が増えております。これらを一括してお任せ下さい。基本計画の段階で検討を行うことで、実施設計に入る前に断熱材の厚みやサッシの性能を決定できます。事前検討の結果を実施設計に反映させることで、二度手間を防ぐことが可能です。お客様のご要望に応じて柔軟に対応いたします。役所や民間審査機関との直接の質疑応答や、提出・受取の代行もお任せ下さい。

上場企業や大手設計事務所から個人設計事務所まで、1547社以上のサポート実績があり、累計2573物件の省エネ計算を行ってまいりました。現在、年間約700棟をサポートしています。全国の共同住宅、事務所、商業施設、病院、大型工場など、幅広い物件用途に対応可能です。省エネ法届出、省エネ適合性判定、住宅性能評価、CASBEE、BELS、ZEH、ZEBなど、環境建築計算に関わる業務をすべて一括でお請けいたします。

適正な業務範囲や内容を適正価格で提供することで、お客様に満足と安心を実感していただくことが大切だと考えています。建物の形状がシンプルで住戸パターン(計算住戸数)が少ないものはリーズナブルな価格で、大規模・複雑な形状の建物は、丁寧な対応と高いクオリティを維持しながら安心価格でご提供いたします。徹底した価格調査を行なっております。他社の見積より半値近くまで抑えられた物件もあり、価格には自信があります。

株式会社上岡祐介建築設計事務所 » 断熱範囲図作成サービス

お客様からのメッセージ

- VOICE

株式会社結建築設計事務所 森田様の写真|お客様の声

株式会社結建築設計事務所 森田様

「意図を汲み取って計算してくれる」

設計事務所ということもあり、こちらの意図をしっかり汲み取って計算してくれました。適合性判定や性能評価の物件では、民間検査機関と直接やり取りしてもらえたので、間に入る手間や時間を省くことができ、設計に集中することができました。また、実施設計もお願いしましたが、共同住宅の設計にも慣れていて手直しがほとんどないので、この先の物件も引き続きお願いしています。