Play Button
株式会社上岡裕介建築設計事務所 申請図 天空率・日影図作成の様子

申請図作成
(天空率・日影図)|対応力の高さと安心の申請図作成

確認申請やボリューム検討を日々行う
上岡祐介建築設計事務所だからできる
申請図作成

個人から大手設計事務所
アトリエ、建設会社まで109社以上をサポート

個人から大手設計事務所アトリエ、建設会社まで109社以上をサポート。

こんな困りごとないですか?

- TROUBLE

上岡祐介建築設計事務所にお任せ下さい!
忙しいお客様に代わって作成いたします。
天空率の検討から申請図面までお受けいたします。高さなどの情報を頂ければ、1週間程度で納品いたします。
また、天空率がNGの場合、ご依頼頂ければクリアするためのご提案もいたします。

実施設計業務や天空率・日影計算も承ります。
ぜひ併せてご依頼下さい。

実施設計業務の詳細

申請図作成業務の詳細

上岡祐介建築設計事務所にお任せ下さい!
敷地形状や想定している外構などの情報を頂ければ
ボリューム段階から検討いたします。
基本図・実施図と作図が進む中でも、ご依頼頂ければ何度でも検討いたします。
検討後の申請図作成もお受けいたします。

実施設計業務や天空率・日影計算も承ります。
ぜひ併せてご依頼下さい。

実施設計業務の詳細

申請図作成業務の詳細

上岡祐介建築設計事務所にお任せ下さい!
検討された図面(配置図)をデータで、あとは高さが分かる立面図・断面図・外構図を頂ければ申請図の作成が可能です。
また、検討のダブルチェックもお受けいたします。

実施設計業務や天空率・日影計算も承ります。
ぜひ併せてご依頼下さい。

実施設計業務の詳細

申請図作成業務の詳細

上岡祐介建築設計事務所にお任せ下さい!
敷地内の高低差の情報・建物高さの情報を頂ければ、日影計算を行い比較検討いたします。 高さなどの情報を頂ければ、1週間程度で納品いたします。
実施設計業務や天空率・日影計算も承ります。
ぜひ併せてご依頼下さい。

実施設計業務の詳細

申請図作成業務の詳細
株式会社上岡祐介建築設計事務所 » 申請図作成業務

上岡祐介建築設計事務所にお任せ下さい!
ボリューム検討から確認申請業務、実施設計に関して、25年の実践経験がございます。
提出予定の審査機関がございましたら、弊社からも問い合わせをいたします。
ご安心してご依頼下さい。

実施設計業務や天空率・日影計算も承ります。
ぜひ併せてご依頼下さい。

実施設計業務の詳細

申請図作成業務の詳細

上岡祐介建築設計事務所にお任せ下さい! ボリューム検討から確認申請業務、実施設計に関して、25年の実践経験がございます。 提出予定の審査機関がございましたら、弊社からも問い合わせをいたします。
ご安心してご依頼ください。

実施設計業務や天空率・日影計算も承ります。 ぜひ併せてご依頼下さい。

実施設計業務の詳細

申請図作成業務の詳細

お悩み解決できます。

- SOLUTION

お忙しくて、細かいご要望をお伝えいただく時間がないこともよく理解しています。だからこそ、作図に入る前に、必要な確認事項は弊社からしっかりお伺いします。例えば、隣地境界沿いの塀やフェンス、エコキュート、屋上設備機器の形状や高さなどです。

年間150棟以上のボリューム検討実績があり、日影計算や天空率の計算も行っています。クリアできない場合には、改善案をご提案いたします。プランの段階からサポートが可能です。

上岡祐介建築設計事務所では、14名体制で迅速かつ正確に対応しており、実施設計業務もお任せいただけます。ぜひお気軽にお問い合わせ下さい!

お忙しくて、細かいご要望をお伝えいただく時間がないこともよく理解しています。
だからこそ、作図に入る前に、必要な確認事項は弊社からしっかりお伺いします。
例えば、隣地境界沿いの塀やフェンス、
エコキュート、屋上設備機器の形状や高さなどです。

年間150棟以上のボリューム検討実績が
あり、日影計算や天空率の計算も行っています。クリアできない場合には、改善案をご提案いたします。プランの段階からサポートが可能です。

上岡祐介建築設計事務所では、14名体制で迅速かつ正確に対応しており、実施設計業務もお任せいただけます。ぜひお気軽にお問い合わせ下さい!

資格保持者多数在籍

一級建築士:4名、二級建築士:4名 在籍
設備設計一級建築士:1名 在籍
住宅省エネルギー技術講習会合格者及び修了者:R019-13-C-0394
省エネ適合性判定終了証明書:第16-0910号
CASBEE建築:08029-24
CASBEE戸建:戸-07722-25
CASBEE不動産:ふ-000820-24
CASBEEウェルネスオフィス評価員:ウ-00131-26

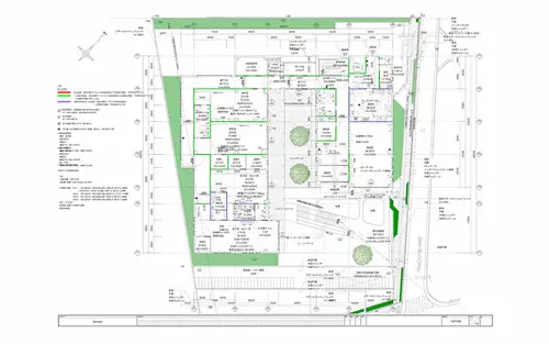
申請図(天空率・日影図)作成業務の業務内容

申請図(天空率・日影図)
作成業務の業務内容

- SERVICE

天空率・日影図の検討は、配置図・各階平面図(R階平面図含む)・外構図・立面図をもとに行います。

ご提供いただく図面のCAD形式については、jww・dxf・dwg・vwxなど、さまざまなソフトに対応可能です。

確認申請用の申請図だけでなく、ボリューム検討の際にもぜひご依頼下さい!行政や民間検査機関からの指摘にも、最後まで責任を持って対応いたします。

各種図面作成

申請図(天空率・日影図)作成業務の実績

- STUDIO

用途

所在地

構造

規模

共同住宅

埼玉県さいたま市

RC造

3,827.93㎡

共同住宅+飲食店

東京都渋谷区

RC造

1,440㎡

病院

神奈川県横浜市

S造

591.4㎡

ホテル

東京都中央区

RC造

9,994㎡

用途

所在地

構造

規模

共同住宅

埼玉県
さいたま市

RC造

3,827.93㎡

共同住宅+
飲食店

東京都
渋谷区

RC造

1,440㎡

病院

神奈川県
横浜市

S造

591.4㎡

ホテル

東京都
中央区

9,994㎡

申請図作成の料金

- SERVIVE

※日影計算および天空率の検討は、
それぞれ1用途・1領域分の金額となります。

2用途・2領域以上、及び建物の形状や規模によっては別途料金がかかる場合がございます。
まずはご相談下さい。

種別

天空率検討(1領域)

料金

¥42,000~

天空率申請図作成(1領域)

¥51,000~

種別

日影計算​

料金

¥50,000~

軸組計算

¥50,000~

N値計算

¥50,000~

※日影計算および天空率の検討は、
それぞれ1用途・1領域分の金額となります。

2用途・2領域以上、及び建物の形状や規模によっては別途料金がかかる場合がございます。
まずはご相談下さい。

種別

料金

天空率検討(1領域)

¥42,000~

天空率申請図作成(1領域)

天空率申請図作成
(1領域)

¥51,000~

種別

料金

日影計算

¥50,000~

軸組計算

¥50,000~

N値計算

¥50,000~

選ばれる理由

- REASON

20年にわたる設計業務の中で、数え切れないほどの日影計算や天空率の検討を行ってきました。
法的にギリギリでクリアさせることも多々あります。クリアできない場合でも、最後まで責任を持って対応いたします!

物件毎に担当が付き、チームとして柔軟に対応させて頂きます。 お急ぎの場合もお申し付けください。 基本的に担当は資格を持ったもの(一級建築士4名、二級建築士2名) が対応いたします。 その他のスタッフが行う場合は、資格者の監修のもとで行います。

大手設計事務所や個人設計事務所、アトリエ、建設会社まで、20社以上をサポートしています。
また、ハウスメーカーやマンションデベロッパーからは、検討を通じて設計のご依頼をいただいております。

株式会社上岡祐介建築設計事務所 » 申請図作成業務
株式会社上岡祐介建築設計事務所 » 申請図作成業務

意匠設計事務所の気持ち痛感します!

株式会社上岡祐介建築設計事務所 » 申請図作成業務

/ 省エネ計算の匠・一級建築士

審査機関との面倒なやり取りも代行対応します。

意匠設計事務所からは、
「設計がわかっているから話が早く、現場での変更対応も早くて助かる。」
「断熱範囲図も合わせて依頼できるので、省エネに関することは全てお任せできて助かる!」
といったお声をいただいています。
コストを抑えたい、手が足りないなどのお悩みがありましたら、ぜひご相談下さい。

意匠設計事務所からは、
「設計がわかっているから話が早く、現場での変更対応も早くて助かる。」
「断熱範囲図も合わせて依頼できるので、省エネに関することは全てお任せできて
助かる!」

といったお声をいただいています。

コストを抑えたい、手が足りないなどのお悩みがありましたら、ぜひご相談下さい。

お客様からのメッセージ

- VOICE

有限会社湯本建築事務所 湯本様の写真|お客様の声

有限会社湯本建築事務所 河合様

「柔軟に対応してくれるので助かる」

いつも、VEなどを行ってお金が決まってから省エネの依頼をしています。現場や施主の要望による変更があると、変更作業に手間がかかり困っていましたが、上岡祐介建築設計事務所は断熱の検討や変更にも柔軟に対応してくれるので大変助かっています。CASBEEも対応してもらえるので、トータルでサポートしてもらっています。納期も早く、仕事もしっかりしてもらえるので非常に満足しています。今後は、実施設計や天空率もお願いしたいと考えています。

申請図(天空率・日影図)作成や
その他代行業務について

株式会社上岡祐介建築設計事務所 » 申請図作成業務

天空率検討:¥30,000/1領域

日影図作成:¥40,000/1用途

※2領域・2用途以上、または建物の形状・規模によっては別途料金が発生する場合がございます。まずはお気軽にご相談下さい。

料金一覧

はい、もちろん可能です。プランの段階からサポートさせていただき、その後の変更対応についても最後までお付き合いいたします。

必要な図面は以下の通りです。
データ形式は、Jwデータ、DXFデータ、またはVWXデータのいずれかでお願い致します。

■ 日影計算・天空率検討:
・配置図(真北、高低差、塀/パットマット/エコキュート/設備機器の高さ)
・平面図
・立面図